Christian du Boucheron Négociateur
Télécharger la fiche
Coup de coeur

Local professionnel 637 m²

Saint-Junien (87200)
464 400 € Référence 1055

A propos de ce bien

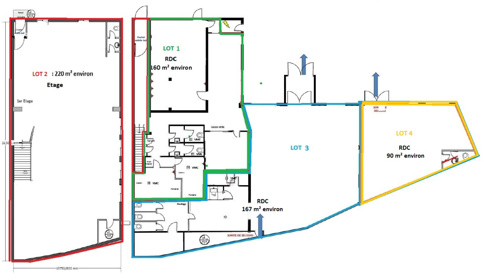
Nous sommes à SAINT JUNIEN (11.500 Habitants), à une trentaine de KM de LIMOGES. Nous y vendons en limite d'Hyper-Centre du Bourg, mais dans un Espace calme et discret, un Ensemble de DEUX IMMEUBLES constitué de 4 LOTS soit 637m² développés sur 2 Niveaux (IMMEUBLE A = Lot 1 en RDC, et Lot 2 en R+1. IMMEUBLE B = Lot 2 et Lot 3 en RDC) :
IMMEUBLE A :
En RDC : LOT 1 Indépendant de 160m², Loué à ce jour 833,00€HT par Bail Professionnel (6 Ans) avec refacturation de la Taxe Foncière au prorata de la surface occupée. Accessible via Hall et couloir, ou par porte Parking) constitué d'une Grande pièce de +/-60m², + 4 autres pièces (Bureaux, 2 VestiairesH/F), Atelier…) et 2 Blocs Sanitaires H/F avec WC/Lavabo.
En R+1 : LOT 2 Indépendant de 220m², Libre à ce jour : Accessible par escalier du couloir + second escalier (Métallique) en colimaçons et en extérieur : Constitué d'un seul gigantesque Open Space équipé d'un coin sanitaires (WC/Lavabo. Sortie de Secours.
Possibilité de Relier les Lots 1 & 2. Parking goudronné de 130m² environ, à partagé entre les Lots 1 & 2, avec accès direct et large (+ de 10ml) sur Voirie.
Chauffage par Convecteurs électriques individuels.
IMMEUBLE B :
En RDC : LOT 3 Indépendant de 167 m² environ, constitué d'une Grande Pièce de 130m² environ, de 2 réserves, et d'un bloc sanitaires de 3 WC.
En RDC : LOT 4 Indépendant de 90m² environ, constitué d'une Grande Pièce de 90m² environ (Donc Bloc Sanitaire WC/Lavabo).
Possibilité de Relier les Lots 3 & 4. Parking goudronné de 230m² environ, à partagé entre les Lots 3 & 4, avec accès largeur 5,5ml sur Voirie.
Chauffage par Convecteurs électriques Individuels et/ou par Climatisation Réversible (selon les Piièces).
Pour les 2 Immeubles : Taxe Foncière 2025 : 8.230€.

Nous vendons cet Ensemble MURS & FONCIER 464.400,00€FAI incluant nos honoraires d'Agence correspondant à 8%TTC du Montant de la Vente, soit 34.400,00€TTC à la charge de l'Acquéreur.

Les risques auxquels ce Bien est exposé sont disponibles sur le site www.georisques.gouv.fr

REF MD IMMO : 1055

Caractéristiques de ce bien

Activités

  • Type de transaction Local professionnel

Agencement

  • Superficie m2 637 m²

Equipements

  • Chauffage individuel : convecteur (electrique) individuel : air pulsé (climatisation)

Secteur

  • Code postal 87200
  • Ville Saint-Junien

Agencement extérieur

  • Nombre d'étage 1

Composition du bien

Rez-de-chaussée

  • IMMEUBLE A (Lot 1 + Lot 2) 380 m²
  • IMMEUBLE B (Lot 3 + Lot 4) 257 m²

Calcul des mensualités

* Champs obligatoires

Diagnostics énergétiques

DPE
GES
DPE ANCIENNE VERSION

Informations financières

Prix de vente honoraires inclus 464 400 €
Honoraires à la charge acquéreur 8 %
Taxe foncière annuelle 8 230 €
Echéance du bail 1999-11-30