Christian du Boucheron Négociateur
Télécharger la fiche
Nouveauté

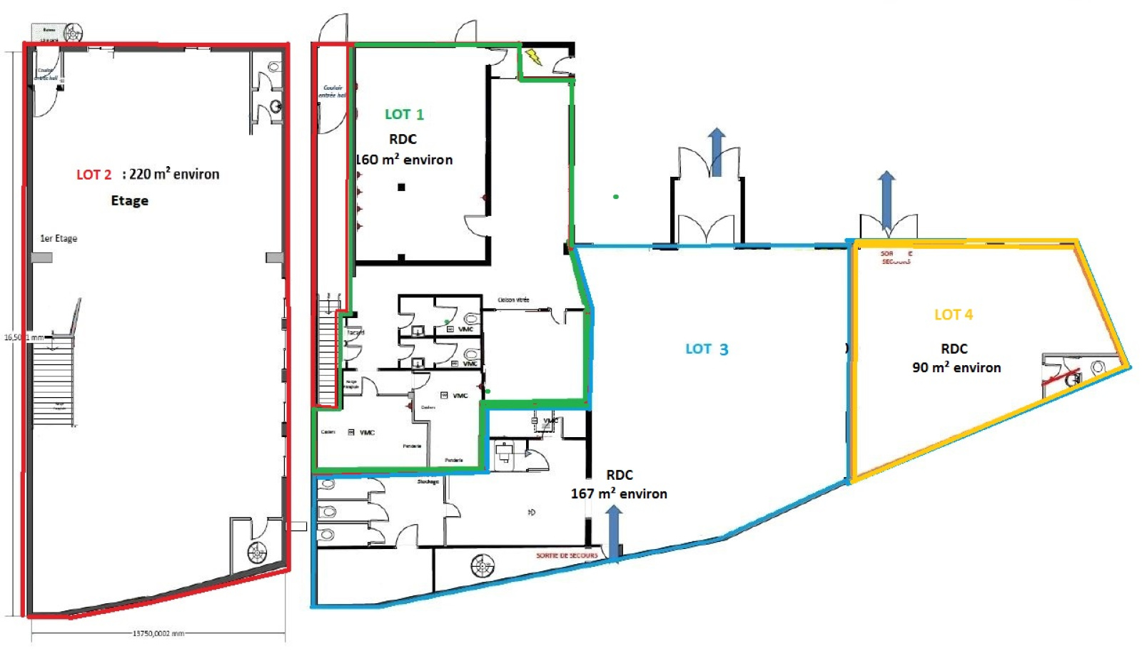
Local professionnel 167 m²

Saint-Junien (87200)
1 425 € / mois HT * HT : Hors Taxes Référence 1051

A propos de ce bien

Nous sommes à SAINT JUNIEN (11.500 Habitants), à une trentaine de KM de LIMOGES. Nous y louons en limite d'Hyper-Centre du Bourg, mais dans un Espace calme et discret, un Local (LOT 3) de 167m² environ, en RDC voisin d'un Local occupé par une activité associative. Le Local est accessible via un accès dédié sur le Parking privé. Il offre un Openspace d'environ 130m², dispose de 3 Pièces de type "Réserves" et/ou Local Technique (Baie de Brassage) pour environ 31m², ainsi que d'un Bloc Sanitaires de 3 WC. Activités attendues : ACTIVITÉS, SERVICE, BUREAUX, CABINET, MÉDICAL (Accès PMR OK), COMMERCE... Parking Municipal Gratuit en immédiate proximité. (Un "complément" reliable en RDC de 90m² et un autre de 220m² en R+1, pourraient venir compléter l'offre de Location, selon disponibilité).

Nous louons ce Local pour un Loyer Mensuel de 1.425,00€HTHC. Charges au réel et Refacturation mensualisée de la Taxe Foncière soit 180€ par Mois en 2026.

Nos Honoraires d'Agence correspondant à 30%TTC du Loyer Annuel HTHC, soit 5.130,00€TTC, sont à la charge du Preneur.

Les risques auxquels ce Bien est exposé sont disponibles sur le site www.georisques.gouv.fr

REF MD IMMO : 1051

Caractéristiques de ce bien

Activités

  • Type de transaction Local professionnel

Agencement

  • Superficie m2 167 m²

Equipements

  • Chauffage individuel : convecteur (electrique) individuel : air pulsé (climatisation)

Secteur

  • Code postal 87200
  • Ville Saint-Junien

Composition du bien

Rez-de-chaussée

  • PLATEAU Openspace 130 m²
  • 2 Réserves 31 m²
  • Bloc 3 Sanitaires 6 m²

Diagnostics énergétiques

DPE
GES
DPE ANCIENNE VERSION

Informations financières

Loyer HT 1 425 € / mois
Honoraires HT charge locataire 5 130 €
Dont état des lieux Non renseigné
Dépot de garantie 2 850 €
Taxe foncière annuelle 2 160 €
Bail COMMERCIAL (3-6-9)